
Características de producto
- Ventilación con ahorro de energía mediante recuperación de humedad, refrigeración y calefacción interior
- Refrigeración libre cuando la temperatura exterior es inferior a la temperatura interior (por ejemplo, durante la noche)
- Filtros opcionales para polvo fino e intermedio ePM10 70% (M6), ePM1 55% (F7), ePM1 70% (F8) para satisfacer los requisitos del cliente o la normativa
- Menor tiempo de instalación gracias al fácil ajuste del caudal de aire nominal, por lo que son necesarios menos amortiguadores en comparación con la instalación tradicional.
- Ideal para tiendas, restaurantes u oficinas que necesiten el máximo espacio libre para el mobiliario, la decoración y los accesorios
- Consumo energético reducido gracias al motor de ventilador DC de diseño especial
- Puede utilizarse como unidad independiente o integrada en el sistema Sky Air o VRV
- Gran variedad de unidades: caudal de aire de 150 hasta 2.000 m³/h
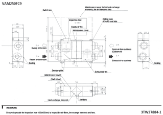
- Elemento intercambiador de calor especialmente desarrollado con papel de alta eficiencia (HEP)
- No es necesaria tubería de drenaje
- Puede funcionar en sobrepresión y en subpresión
- Solución de aire nuevo total con calentador eléctrico opcional
Documentación
Descargar idioma
Descargar idioma
Descargar idioma
Descargar idioma
Descargar idioma