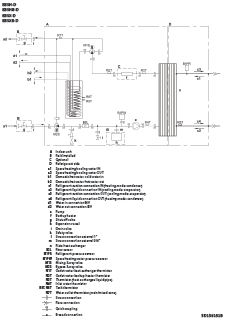
Características de producto
- Máximo uso de energía renovable: utiliza la tecnología de bomba de calor para soporte solar y de calefacción en calefacción de habitaciones y producción de agua caliente
- Depósito libre de mantenimiento: sin corrosión, ánodos, incrustaciones, ni depósitos de cal y sin pérdida de agua a través de la válvula de seguridad
- Principio de agua limpia: agua higiénica, sin necesidad de desinfección térmica de legionela
- Módulo W-LAN y compatibilidad con cartucho
- Mando a distancia con cable para la la estación de bomba EKSRDS1A, conectable al sistema solar bajo presión
Esta unidad se puede usar con las siguientes unidades
Beneficios
-
Agua caliente limpia
La estructura del acumulador térmico garantiza una higiene óptima del agua y elimina el riesgo de bacterias y legionela. Tenga la garantía de que su agua caliente es limpia y segura.
-
Aplicación Onecta (opcional)
Controle el clima interior desde cualquier lugar a través de un smartphone o tablet
-
Control por voz
Controle la unidad mediante su voz
-
Soporte solar
Aproveche la energía solar Conecte fácilmente su medio de almacenamiento de agua caliente a los colectores solares del tejado.
Documentación
Descargar idioma
Lo sentimos, no encontramos documentos en esta categoría
Descargar idioma
Descargar idioma
Descargar idioma
EBSH(B)-D_EBSX(B)-D_eldata_4D139051A_ES
PDF | 554.54KB
EBSH(B)-D_EBSX(B)-D_comb_3D136146D_ES
PDF | 441.90KB
EBSH(B)-D_EBSX(B)-D_wdpsbuh_4D125934D_ES
PDF | 467.98KB
EBSH(B)-D_EBSX(B)-D_wdnl_4D125934D_ES
PDF | 513.68KB
EBSH(B)-D_EBSX(B)-D_wdcc_4D125934D_3_ES
PDF | 441.40KB
EBSH(B)-D_EBSX(B)-D_wdcc_4D125934D_2_ES
PDF | 465.43KB
EBSH(B)-D_EBSX(B)-D_wdcc_4D125934D_1_ES
PDF | 463.60KB
EBSH(B)-D_EBSX(B)-D_excondia_4D135453C_ES
PDF | 471.22KB
EBSH(B)-D_EBSX(B)-D_pip_3D136151B_ES
PDF | 718.74KB
EBSH(B)-D_EBSX(B)_comb_3D136146A_ES
PDF | 447.53KB
EBSH(B)-D_EBSX(B)-D_capDHW_3D136147A_ES
PDF | 442.00KB
EBSH(B)-D_EBSX(B)-D_dim_3D138487_ES
PDF | 1.30MB
EBSH(B)-D_EBSX(B)-D_eldata_4D139051_ES
PDF | 553.86KB
EBSH(B)-D_EBSX(B)-D_wdpsbuh_4D125934A_ES
PDF | 455.17KB
EBSH(B)-D_EBSX(B)-D_wdnl_4D125934A_ES
PDF | 525.45KB
EBSH(B)-D_EBSX(B)-D_wdcc_4D125934A_3_ES
PDF | 442.88KB
EBSH(B)-D_EBSX(B)-D_wdcc_4D125934A_2_ES
PDF | 463.42KB
EBSH(B)-D_EBSX(B)-D_wdcc_4D125934A_1_ES
PDF | 463.78KB
EBSH(B)-D_EBSX(B)-D_pip_3D136151_ES
PDF | 521.23KB
EBSH(B)-D_EBSX(B)-D_excondia_4D135453_ES
PDF | 468.67KB
EBSH(B)-D_EBSX(B)-D_wdpsbuh_4D135433A_ES
PDF | 531.54KB
EBSH(B)-D_EBSX(B)-D_wdnl_4D135433A_ES
PDF | 523.65KB
EBSH(B)-D_EBSX(B)-D_wdcc_4D135433A_1_ES
PDF | 469.11KB
EBSH(B)-D_EBSX(B)-D_wdcc_4D135433A_2_ES
PDF | 445.80KB
EBSH(B)-D_EBSX(B)-D_capDHW_3D136147_ES
PDF | 157.72KB
EBSH(B)-D_EBSX(B)-D_statpres_3D136149_ES
PDF | 103.20KB
EBSH(B)-D_EBSX(B)-D_comb_3D136146_2_ES
PDF | 103.63KB
EBSH(B)-D_EBSX(B)-D_comb_3D136146_1_ES
PDF | 105.60KB
EBSH(B)-D_EBSX(B)-D_install_3D136049_ES
PDF | 257.74KB
EBSH(B)-D_EBSX(B)-D_eldata_3D136052_ES
PDF | 106.98KB
EBSH(B)-D_EBSX(B)-D_eldata_4D136059_ES
PDF | 56.27KB
EBSH-D.EBSHB-D.EBSX-D.EBSXB-D_wdcc_4D125934F_2_EN
PDF | 471.57KB
EBSH-D.EBSHB-D.EBSX-D.EBSXB-D_install_3D136049B_EN
PDF | 420.02KB
EBSH(B)-D_EBSX(B)-D_wdpsbuh_4D125934_EN
PDF | 496.92KB
EBSH(B)-D_EBSX(B)-D_wdcc_4D125934_3_EN
PDF | 440.65KB
EBSH(B)-D_EBSX(B)-D_statpres_3D136149A_EN
PDF | 418.08KB
EBSH(B)-D_EBSX(B)-D_capDHW_3D136147C_EN
PDF | 451.19KB
EBSH(B)-D_EBSX(B)-D_wdnl_4D125934E_EN
PDF | 512.75KB
EBSH(B)-D_EBSX(B)-D_excondia_4D132247D_EN
PDF | 494.20KB
EBSH(B)-D_EBSX(B)-D_eldata_4D139051B_EN
PDF | 602.57KB
EBSH(B)-D_EBSX(B)-D_operange_3D130989A_EN
PDF | 702.92KB
EBSH(B)-D_EBSX(B)-D_operange_3D136633A_EN
PDF | 560.90KB
EBSH(B)-D_EBSX(B)-D_dim_3D151010A_EN
PDF | 2.98MB
EBSH(B)-D_EBSX(B)-D_comb_3D136146E_2_EN
PDF | 427.70KB
EBSH(B)-D_EBSX(B)-D_comb_3D136146E_1_EN
PDF | 435.47KB
EBSH(B)11-16P30D.EBSX(B)11-16P30D_dim_3D156339_EN
PDF | 654.19KB
EBSH(B)11-16P50D.EBSX(B)11-16P50D_dim_3D151008_EN
PDF | 666.67KB
EBSH(B)-D_EBSX(B)-D_wdcc_4D125934D_1_EN
PDF | 463.37KB
EBSH(B)-D_EBSX(B)-D_pip_3D136151B_EN
PDF | 719.01KB
EBSH(B)11-16P30D_EBSX(B)11-16P30D_grav_3D136143_EN
PDF | 669.83KB
EBSH(B)11-16P50D_EBSX(B)11-16P50D_grav_3D136144_EN
PDF | 1.05MB
EBSH(B)-D_EBSX(B)-D_eldata_3D136052_EN
PDF | 270.15KB
Descargar idioma