
Características de producto
- Límites de funcionamiento ampliados para ofrecer el máximo confort en condiciones más severas (de -20 °C hasta +50 °C).
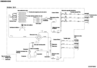
- Nuevo diseño de la unidad exterior
- Valores de eficiencia estacional de hasta A+++ en refrigeración y de A++ en calefacción gracias a la tecnología actualizada y a la inteligencia integrada
- Se pueden conectar hasta 3 unidades interiores a una sola unidad exterior Multi; todas las unidades interiores se controlan individualmente y no se tienen que instalar en la misma estancia o en el mismo momento
- Elegir un producto R-32, reduce el impacto medioambiental en un 68% si se compara con el R-410A y se traduce directamente en una reducción del consumo energético gracias a su elevada eficiencia energética
- Se pueden conectar varios tipos diferentes de unidades interiores: unidades de pared, unidades de cassette angular, unidades de conductos, etc.
- Las unidades exteriores incorporan un compresor swing, famoso por el poco ruido que genera y su alta eficiencia energética
Beneficios
Documentación
Descargar idioma
Descargar idioma
Descargar idioma
Descargar idioma